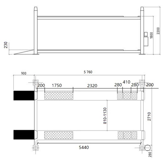
Подъёмник платформенный электромеханический на 4 тонны ПЛ-4 с напольной рамой, четырехстоечный с электронной синхронизацией, (2 стойки с червячным редуктором), (длинна платформ 4200 мм), предусмотрены приямки для установки стенда регулировки схода-развала легковых автомобилей и легких грузовиков. По дополнительному заказу может укомплектовываться перекатной тележкой (траверсой) ТД-1 или подъёмником ПНП-3. Сделано в России.
| Страна производства | Россия |
| Бренд | АСО Псков (Россия) |
| Питающая сеть | 380 |
| Синхронизация | нижняя |
| Выс.подъем.для подъемников | 1600 |
| Мин.подх.для подъемников | 300 |
| Грузоподъемность подъемника | 4000 |
| Тип привода подъемника | электромеханический |
Характеристики
Подъёмник платформенный электромеханический на 5 тонн ПЛ-5 (длинна платформ 5800мм) четырехстоечный с червячным редуктором. Многоуровневая система безопасности. По дополнительному заказу может укомплектовываться перекатной тележкой (траверсой) мод. ТД. с домкратом для вывешивания передней или задней оси автомобиля. Подъёмник может монтироваться как на раму бетоннируемую в пол, так и на напольную раму (поставляются по отдельному заказу). Сделано в России
| Страна производства | Россия |
| Бренд | АСО Псков (Россия) |
| Питающая сеть | 380 |
| Синхронизация | нижняя |
| Выс.подъем.для подъемников | 1600 |
| Мин.подх.для подъемников | 300 |
| Грузоподъемность подъемника | 5000 |
| Тип привода подъемника | электромеханический |
Характеристики
Подъёмник платформенный с напольной рамой ПЛ-4 по ТЗ грузоподъемностью 4 тонны, (2 стойки с червячным редуктором), (длинна платформ 4200 мм) предусмотрены приямки для установки стенда регулировки схода-развала передних колёс, электронная синхронизация. По дополнительному заказу может укомплектовываться перекатной тележкой (траверсой) ТД-1 или подъёмником ПНП-3. Атмосферостойкий, эксплуатация на открытой площадке при t +40С-20С. Сделано в России.
| Страна производства | Россия |
| Бренд | АСО Псков (Россия) |
| Питающая сеть | 380 |
| Синхронизация | нижняя |
| Выс.подъем.для подъемников | 1600 |
| Мин.подх.для подъемников | 300 |
| Грузоподъемность подъемника | 4000 |
| Тип привода подъемника | электромеханический |
Характеристики
Подъемник платформенный ПЛ5-30, грузоподъемность 5 т., 4 стойки, червячный редуктор, электронная синхронизация подъёма платформы, предусмотрены приямки для установки стенда регулировки схода-развала передних колес. По дополнительному заказу может укомплектовываться перекатной тележкой (траверсой) мод. ТД. Подъёмник может монтироваться как на раму, бетонируемую в пол, так и на напольную (рамы поставляются по отдельному заказу).
| Страна производства | Россия |
| Бренд | АСО Псков (Россия) |
| Масса | 2100 |
| Мощность, кВт | 6 |
| Синхронизация | нижняя |
| Выс.подъем.для подъемников | 1600 |
| Мин.подх.для подъемников | 300 |
| Грузоподъемность подъемника | 5000 |
| Вид подъемника | платформенный |
| Тип привода подъемника | электромеханический |
| Напряжение питания | 380 |
| Цвет | синий |
Характеристики
Подъёмник платформенный электромеханический на 5 тонн ПЛ-5Н (длинна платформ 5800мм) четырехстоечный с червячным редуктором. Многоуровневая система безопасности. Укомплектован передвижным подъёмником (траверсой) грузоподъёмностью 3 тонны, модель ПНП-3 для вывешивания передней или задней оси автомобиля. Подъёмник может монтироваться как на раму бетоннируемую в пол, так и на напольную раму (поставляются по отдельному заказу).
| Страна производства | Россия |
| Бренд | АСО Псков (Россия) |
| Питающая сеть | 380 |
| Синхронизация | нижняя |
| Выс.подъем.для подъемников | 1600 |
| Мин.подх.для подъемников | 300 |
| Грузоподъемность подъемника | 5000 |
| Тип привода подъемника | электромеханический |
Характеристики
Подъёмник платформенный электромеханический на 5 тонн ПЛ-5 по ТЗ (длинна платформ 5800мм) четырехстоечный с червячным редуктором. Многоуровневая система безопасности. По заказу комплектуется (траверсой) ТД с домкратом для вывешивания передней или задней оси автомобиля. Подъёмник может монтироваться как на раму бетоннируемую в пол, так и на напольную раму (поставляются по отдельному заказу). Атмосферостойкий, эксплуатация на открытой площадке при t +40С-20С.
| Страна производства | Россия |
| Бренд | АСО Псков (Россия) |
| Питающая сеть | 380 |
| Синхронизация | нижняя |
| Выс.подъем.для подъемников | 1600 |
| Мин.подх.для подъемников | 300 |
| Грузоподъемность подъемника | 5000 |
| Тип привода подъемника | электромеханический |
Характеристики
Подъемник платформенный ПЛ5-30Н, грузоподъемность 5 т, червячный редуктор, электронная синхронизация подъёма платформы, предусмотрены приямки для установки стенда регулировки схода-развала передних колёс. Укомплектован передвижным подъёмником грузоподъёмностью 3 тонны, модель ПНП-3-01. Подъёмник может монтироваться как на раму, бетонируемую в пол, так и на напольную (рамы поставляются по отдельному заказу).
| Страна производства | Россия |
| Бренд | АСО Псков (Россия) |
| Масса | 2330 |
| Мощность, кВт | 6 |
| Синхронизация | нижняя |
| Выс.подъем.для подъемников | 1600 |
| Мин.подх.для подъемников | 300 |
| Грузоподъемность подъемника | 5000 |
| Вид подъемника | платформенный |
| Тип привода подъемника | электромеханический |
| Напряжение питания | 380 |
| Цвет | синий |
Характеристики
Домкрат канавный гидравлический (траверса) TT-2 г/п 2 тонны предназначен для вывешивания осей автомобиля при регулировке углов установки колес и слесарных работах. Используется на четырехстоечном подъемнике или яме. Высота в поднятом положении 506.5 мм. Высота в опущенном положении 372 мм. Колея траверсы 824-1155 мм, Подхваты автомобиля (ширина базы) от 780 до 1340 мм.
| Страна производства | Китай |
| Бренд | ТЕМП (Китай) |
| Синхронизация | нижняя |
| Тип подъемника | передвижной |
| Выс.подъем.для подъемников | 506 |
| Мин.подх.для подъемников | 372 |
| Грузоподъемность подъемника | 2000 |
| Вид подъемника | легковой |
| Тип привода подъемника | гидравлический |
| Цвет | синий |
| Разблокировка подъемника | ручная на колонне |
Характеристики
Подъемник канавный ручной (траверса) г/п 2 т, ES2.2R Ручной привод. Грузоподъемность 2000 кг. На канаву (яму) или четырехстоечный подъемник. Подходит для ямы шириной 850-1230 мм. Ширина платформ регулируется 840-1500 мм. Высота подъема с проставками 530 мм. Минимальная высота 210 мм. Максимальная высота подъема 410 мм. ...
| Страна производства | Китай |
| Синхронизация | нижняя |
| Тип подъемника | передвижной |
| Грузоподъемность подъемника | 2000 |
| Вид подъемника | легковой |
| Тип привода подъемника | гидравлический |
| Цвет | синий |
| Разблокировка подъемника | ручная на колонне |
Характеристики
Домкрат канавный пневмогидравлическая TTP-2 грузоподъемность 2 тонны, предназначен для вывешивания осей автомобиля при регулировке углов установки колес и слесарных работах. Используется на четырехстоечном подъемнике или яме. Высота в поднятом положении 506.5 мм. Высота в опущенном положении 372 мм. Колея траверсы 824-1150 мм, подхваты автомобиля (ширина базы) от 780 до 1340 мм.
| Страна производства | Китай |
| Бренд | ТЕМП (Китай) |
| Синхронизация | нижняя |
| Тип подъемника | передвижной |
| Наличие товара | да |
| Выс.подъем.для подъемников | 560 |
| Мин.подх.для подъемников | 266 |
| Грузоподъемность подъемника | 2500 |
| Вид подъемника | легковой |
| Тип привода подъемника | пневмогидравлический |
| Цвет | синий |
| Разблокировка подъемника | ручная на колонне |
Характеристики
Траверса NORDBERG N423 (B/G) грузоподъемность 2 тонны предназначена для подъема передней или задней части автомобиля, расположенного на яме, на четырехстоечном и ножничном подъемнике. В комплект входят 2 проставки (40 мм) Колея траверсы (регулируется) 790-1040 мм Диапазон длины платформы (регулируется) 780-1600 мм. Высота подъема 215-485 мм. ...
| Страна производства | КНР |
| Бренд | Nordberg (Китай) |
| Тип привода | Гидравлический |
Характеристики
Траверса пневмогидравлическая, г/п 2 тонны NORDBERG N423A для подъема передней или задней части автомобиля, расположенного на яме, на четырехстоечном и ножничном подъемнике. Конструкция траверсы предусматривает механическую защиту от перегрузок. В комплект входят 2 винтовые насадки. Высота подъема 215-485 мм, Колея траверсы (регулируется) 790-1040 мм. Диапазон длины платформы (регулируется) 780-1600 мм. ...
| Страна производства | Китай |
| Бренд | Nordberg (Китай) |
| Тип привода | Пневмогидравлический |
Характеристики
Тележка перекатная (траверса) ТД-1 Монтируется между платформами подъемника. Предназначена для подъема передней или задней оси автомобиля. Перемещение вручную по направляющим подъемника на ползунах. Возможность установки домкрата телескопического грузоподъемность до 2-х тонн. Надежное самоторможение от перемещения под нагрузкой. Поставляется к платформенным подъемникам ПЛ-4 или ПГ-4.
| Страна производства | Россия |
| Бренд | АСО Псков (Россия) |
Характеристики
Тележка перекатная (траверса) ТД монтируется между платформами подъемника. Предназначена для подъема передней или задней оси автомобиля. Перемещение вручную по направляющим подъемника на колесах. Возможность установки домкрата телескопического грузоподъемность до 2-х тонн. Надежное самоторможение от перемещения под нагрузкой. Поставляется к платформенным подъемникам ПЛ-5.
| Страна производства | Россия |
| Бренд | АСО Псков (Россия) |
Характеристики
Траверса NORDBERG N433 (B/G) (синий/серый) для подъема передней или задней части автомобиля, расположенного на яме, на четырехстоечном и ножничном подъемнике. Грузоподъемность 3000 кг. Высота платформы 75 мм. Высота от ролика до насадки 130 мм. Ширина платформы 385 мм. Высота подъема 215-485 мм. Диапазон длины платформы (регулируется) 780-1600 мм. Колея траверсы (регулируется) 790-1040 мм. ...
| Страна производства | КНР |
| Бренд | Nordberg (Китай) |
Характеристики
Траверса пневмогидравлическая 3.2 т для подъемника 4465B, синяя N433BA Траверса пневмогидравлическая NORDBERG N433BA для подъема передней или задней части автомобиля для подъемника 4465B Резьбовая насадка с максимальным размером 55 мм + 2 удлинителя по 100 мм. Минимальная высота подъема 24,5 см. Максимальная высота подъема 73,5 см. Высота от ролика до насадки 73,5 см. Минимальная колея траверсы, см 98,5 см. Максимальная колея траверсы 120 см. ...
| Страна производства | КНР |
| Бренд | Nordberg (Китай) |
Характеристики
Траверса пневмогидравлическая NORDBERG N433GA для подъема передней или задней части автомобиля, расположенного на яме. Грузоподъемность: 3 тонны Минимальная высота подъема: 252 мм Максимальная высота подъема: 522 мм Регулируемый диапазон длины платформы: 760-1500 мм Колея траверсы: 900-1318 мм Встроенная защита от перегрузок, при помощи которой обеспечивается плавный подъем и спуск без рывков. ...
| Страна производства | КНР |
| Бренд | Nordberg (Китай) |
Характеристики
Траверса NORDBERG N433A для подъема передней или задней части автомобиля, расположенного на яме, на четырехстоечном и ножничном подъемнике. Грузоподъемность 3000 кг. Высота платформы 75 мм. Высота от ролика до насадки 130 мм. Ширина платформы 385 мм. Высота подъема 215-485 мм. Диапазон длины платформы (регулируется) 780-1600 мм. Колея траверсы (регулируется) 790-1040 мм. ...
| Страна производства | КНР |
| Бренд | Nordberg (Китай) |
Характеристики
Траверса пневмогидравлическая г/п 4т. (старый артикул N433E) NORDBERG N443GA для подъема передней или задней части автомобиля, расположенного на яме. Траверса подходит для разных автомобилей. Конструкция траверсы предусматривает механическую защиту от перегрузок. В комплект входят 2 прямоугольные насадки, проставки для рамных авто - 2 шт. Ширина платформы 460 мм Грузоподъемность 4000 кг. Высота подъема 261-511 мм. Диапазон длины платформы (регулируется) 780-1515 мм. Колея траверсы (регулируется) 870-1290 мм. ...
| Страна производства | КНР |
| Бренд | Nordberg (Китай) |
Характеристики
Подъёмник навесной (траверса) ПНП-3 грузоподъемность 3 тонны для подъёма передней или задней оси автомобиля для сход развала или слесарных работ. Перемещение вручную. Многоуровневая система безопасности. Регулируемые опоры позволяют производить подъём автомобилей с различной конфигурацией днища или рамы. Предназначен для установки на подъемниках ПЛ-4, ПГ-4 Высота подъема, м 0,44 Высота подхватов над уровнем платформы (min), м 0,06 Габаритные размеры не более (длина×ширина×высота), мм 640×1070×300
| Страна производства | Россия |
| Бренд | АСО Псков (Россия) |
| Тип привода | Ручной |
Характеристики




